Contoh Gambar Tata Ruang Rumah Minimalis
Untuk tiang teras pula mestik diperhatikan karena teras depan rumah anda adalah hal pertama.

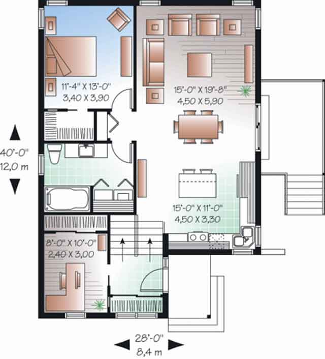
Contoh gambar tata ruang rumah minimalis. Ruang tamu minimalis selamat jumpa teman teman yang senangi hari ini saya akan membahas tentang model ruang tamu tata ruang tamu sofa minimalis untuk ruangan kecil dekorasi ruang tamu model sofa ruang tamu kecil ruang tamu sempit tata ruang rumah minimalis dan masih banyak lagi yang belum kita ketahui. Di bawah ini merupakan contoh dari gambar teras rumah minimalis yang bisa menjadikan refrensi anda dalam membangun rumah. Itulah 20 contoh denah rumah minimalis type 21 terbaru dengan beberapa tips bagaimana membuat denah rumah minimalis type 21 yang mudah untuk anda ikuti. 20 contoh rumah minimalis tipe 21 terbaru.
Demikian contoh tata ruang rumah sederhana yang bisa di jadikan ide dalam menentukan tata ruang rumah anda sendiri. Berikut contoh tata ruang rumah minimalis sempit elegan untuk anda. Semoga ulasan di atas bisa berguna untuk anda dan juga keluarga dalam memiliki jenis rumah minimalis yang sesuai dengan kebutuhan. Ini menyangkut faktor waktu dan supaya dapat menyangga teras dalam waktu yang lama disamping tata ruang teras salah satunya.
Model tata ruang rumah minimalis yang ditampilkan oleh gambar diatas mengisirasi anda dalam menciptakan tampilan kamar mandi yang sempit menjadi sebuah hunian yang luas eksklusif dan modern. Ruang tamu minimalis selamat datang di portal hidup simpel pada kesempatan kali ini kita akan membahas mengenai model ruang tamu sofa minimalis untuk ruangan kecil tata ruang tamu dekorasi ruang tamu ruang tamu sempit model sofa ruang tamu kecil tata ruang rumah minimalis dan berbagai macam variasi yang lainnya.


































































































