Gambar Denah Rumah Yang Minimalis
Inspirasi desain gambar interior rumah minimalis yang elegan desain interior pada sebuah rumah minimalis menjadi aspek penting yang perlu untuk diperhatikan.

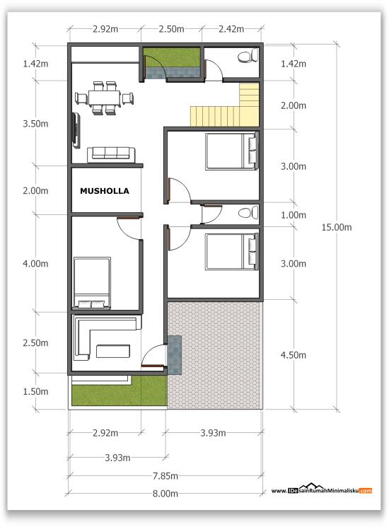
Gambar denah rumah yang minimalis. Memiliki tiga tempat tidur bukan berarti anda harus mengorbankan kenyamanan bersantai di ruang tamu atau keleluasaan memasak di dapur lho. Mudah mudahan apa yang bisa saya sampaikan bisa bermanfaat untuk kita semuanya. Dalam pembagunan rumah atau ilmu arsitektur denah merupakan tahap awal yang terpenting untuk menentukan model dan ciri suatu bangunan. Memiliki sebuah rumah dengan desain yang kita inginkan adalah sesuatu yang benar benar akan membuat kita merasa baik.
Ya ini saja yang bisa saya sampaikan mengenai tentang denah rumah minimalis dan di dalam artikel juga membahas tentang denah rumah sederhana 3d desain denah rumah 3 kamar desain denah rumah denah rumah sederhana 3 kamar. 17 inspirasi denah rumah minimalis 3 kamar tidur. 100 contoh desain rumah minimalis dengan halaman yang luas kali ini kita akan membahas mengenai 100 contoh desain rumah minimalis dengan halaman yang luas yang mungkin anda dicari di internetdesign ini akan kami tampilkan hingga 100 gambar paling lengkap untuk anda dari segala contoh yang anda inginkan jika anda tidak sabar berikut ini adalah 100 contoh desain rumah minimalis dengan halaman. Hanya saja pada saat membeli rumah jarang sekali dijumpai model rumah yang terdapat 4 kamar tidur didalamnya.
Meskipun hanya sebuah gambar rumah minimalis sederhana ukuran kecil sekalipun tapi dengan itu semua proses pembanguan menjadi lebih mudah di kerjakan maupun dikontrol dan di tinjau ulang. Meskipun tak terlihat sulit memulai gambar denah rumah minimalis tidak sesederhana kelihatannya. Gambar denah rumah 4 kamar tidur yang luas dan nyaman banyak orang membutuhkan lebih banyak ruang didalam rumahnya. Selain memastikan desain minimalis tetap bisa terwujud denah rumah minimalis yang menjadi panutanmu menvisualisasi rumah juga harus mampu memenuhi seluruh kebutuhan dan juga tetap nyaman untuk dihuni.
Oleh karenanya penataan desain interior didalam rumah. Nah untuk anda yang berencana membangun rumah mewah yang luas maka membangun 4 kamar tidur tidak ada salahnya. Tidak heran jika ide foto gambar tampak depan rumah minimalis 1 dan 2 lantai terbaru banyak yang mencari sebagai inspirasi mendesain rumah minimalis idaman. Temukan denah terbaik disini ada 30 model denah rumah minimalis modern 1 lantai 2 lantai type 36 type 45 2 kamar yang inspiratif.

































































































