Gambar Rencana Atap Rumah Minimalis
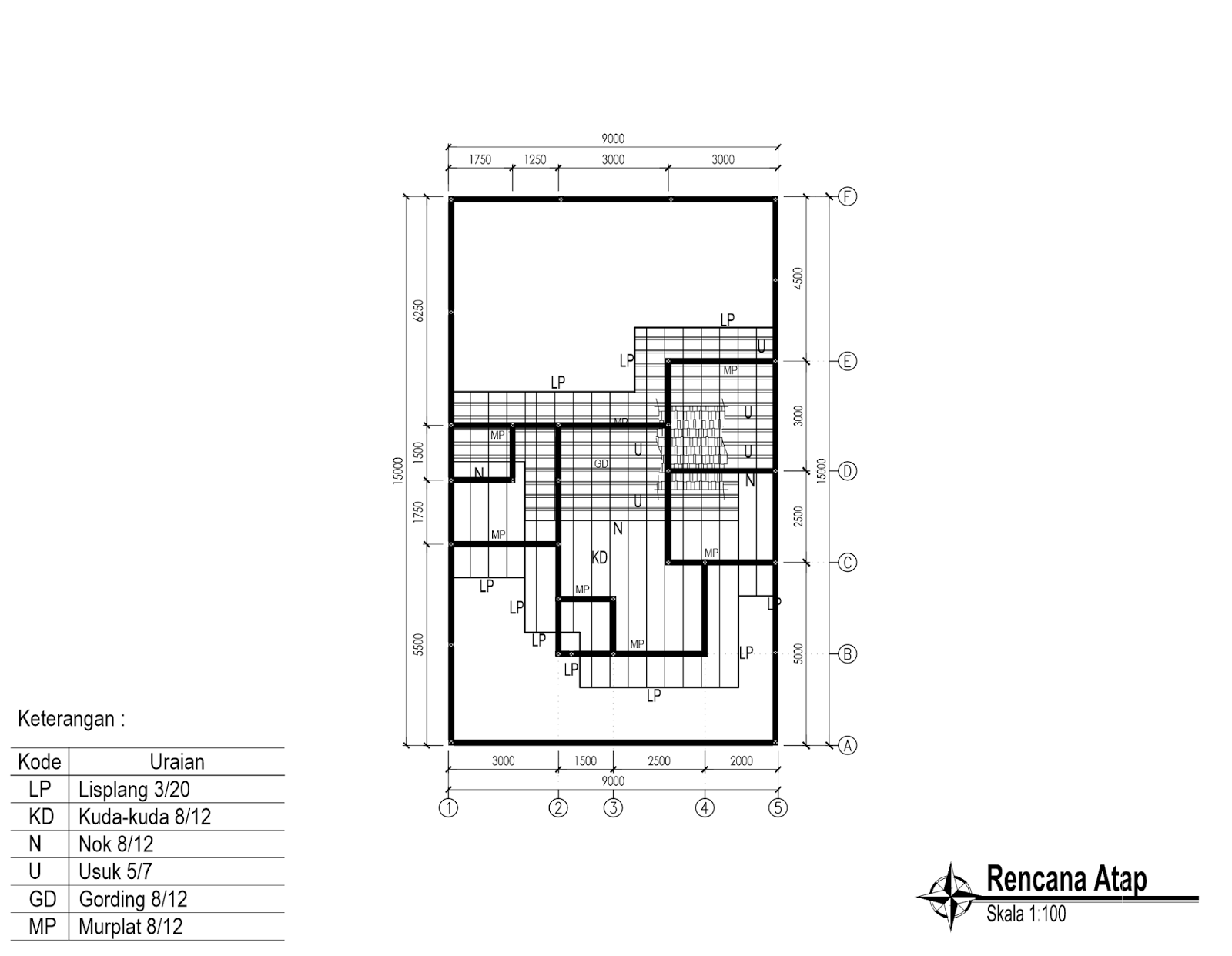
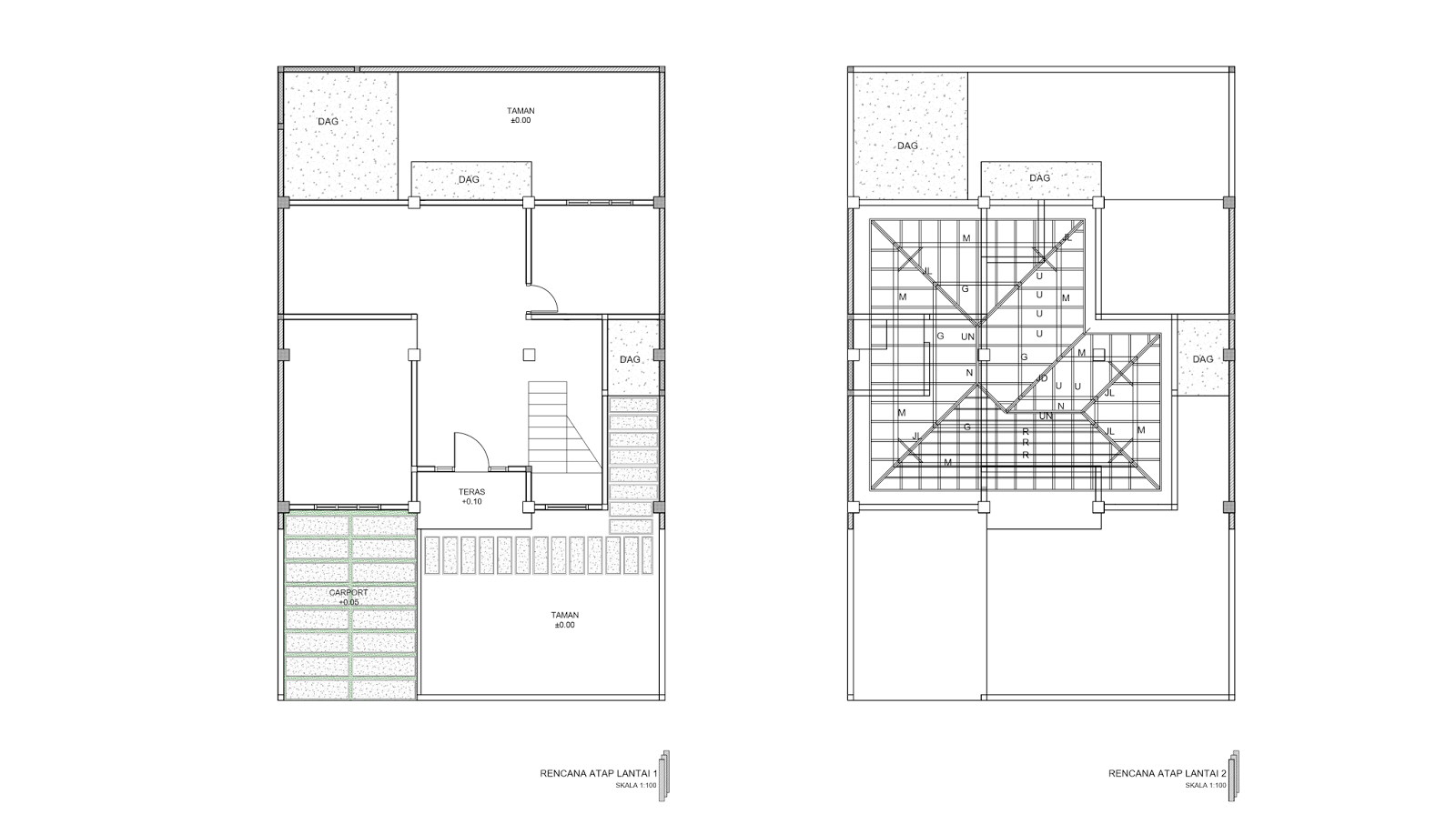
Gambar denah rencana atap dwg.

Gambar rencana atap rumah minimalis. Model atap rumah minimalis lantai 1 merupakan salah satu model atap rumah minimalis yang hanya terdiri dari 1 lantai. 02 denah rencana atap rumah 1 lantai gambar bestek manual sudah jarang digunakan karena kurang praktis dan kurang detail dalam pembuatannya. Nah bila saat ini anda tertarik dengan bentuk rumah minimalis dan ingin segera merenovasi atau membelinya cari tahu dulu yuk beberapa contoh gambar bentuk atap rumah minimalis yang sederhana dan juga mewah berikut ini. Jadi demikian memilih atap rumah minimalis tidak dapat dilakukan dengan sembarangan.
Gambar denah rencana atap rumah type 60 gambar kerja rumah type 70 gambar kerja rumah type 36 pdf gambar kerja rumah lengkap gambar kerja rumah pdf bestek rumah tinggal download download gambar kerja rumah type 36 gambar kerja rumah 2 lantai pdf download bestek rumah type 45 download gambar kerja rumah dwg. Contoh gambar kerja lengkap rumah minimalis 1 lantai adalah dokumentasi dari gambar kerja lengkap rumah minimalis 1 lantai yang sedang kami kerjakanmudah mudahan bermanfaat bagi anda yang sedang mencari contoh gambar kerja lengkap rumah minimalis 1 lantaiterima kasih contoh gambar kerja lengkap yang lain. Gambar bentuk atap rumah minimalis yang terbaru dan elegan dalam pembangunan sebuah rumah atap rumah menjadi bagian yang tidak terpisahkan dan penting untuk diperhatikan dengan baik. Model ini sangat sederhana dan minimalis namun tetap indah.
Terlebih memang konsep desain rumah minimalis juga berkaitan erat dengan nuansa modern simpel dan juga nyaman. Untuk itu sekarang sudah banyak digunakan gambar kerja yang dibuat menggunakan software komputer seperti autocad. 02 denah rencana atap rumah 1 lantai.




























































































