Gambar Konstruksi Rumah Minimalis
Bagi anda yang berencana akan membangun rumah bersama dengan jasa desain rumah dengan arsitek profesional didalamnya tapi masih bingung dimana menemukan jasa desain rumah yang dapat dipercaya dan memberikan hasil yang terbaik.

Gambar konstruksi rumah minimalis. Info seputar gambar konstruksi rumah. Diantara denah rumah minimalis yang paling banyak ditanyakan pengunjung kami yakni rumah type 21 36 45 54 60 70 dan 90. May 7th 2015. Itulah koleksi gambar rumah minimalis yang telah saya pilihkan untuk anda juga sebagai dokumentasidan arsip blog desain rumah sederhana.
Info seputar gambar rumah kebun gambar rumah kebun sekat ruangan minimalis home interior design sekat sekat ruangan sekat minimalis t. Apabila anda akan membangun rumah maka gambar gambar tersebut akan membantu konsultan perencana anda. Jendela sweethousedecoratingcom modern contemporary kitchen design with unique and attractive decoration to the landscape of home improvement is the german. Banyak developer yang membangun rumah dengan konsep minimalis karena multi fungsi.
Gambar rumah minimalis modern 2 lantai memiliki konsep dimana ruangan dilantai 1 digunakan untuk ruang tamu lalu sebelahnya bisa digunakan untuk ruang keluarga. Apatkan kumpulan 45 gambar kerja rumah minimalis lengkap dalam bentuk file cad dan. Bentuknya dan desainnya yang sederhana dan cenderung. Contoh desain gambar rumah minimalis 2 lantai dikategorikan bermacam macam tetapi dari sekian jenis konsepnya ada tipe hunian dengan pola susunan sketsa terbaik.
Maka dengan mudah konsultanarsitek yang anda pilih dapat merancang denah dan tata ruang berdasarkan. Rumah sederhana merupakans alah satu jenis rumah minimimalis. Untuk gambar kerjanya bisa anda downloa. Gambar konstruksi rumah harga bahan bangunan bangunan material bangunan tips harga bahan bangunan tips perbaikan desain denah minimalis fengshui arsitektur properti indonesia kpr toolselektronik home.
Gambar kerja rumah goresan tangan. Jasa gambar konstruksi rumah. Anda cukup perlihatkan gambar yang paling anda sukai. May 2nd 2015.
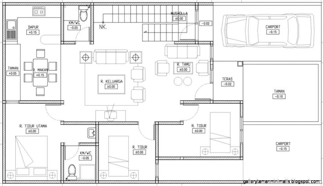
Rumah minimalis kali ini saya desain diatas lahan tanah 84 meter persegi atau dengan ukuran tanah 7 meter x 12 meter. Aneka contoh gambar rumah minimalis terbaru untuk rumah minimalis modern atau sederhana baik 1 lantai atau 2 lantai dari berbagai type rumah pilihan. Di bagian belakang bisa dimanfaatkan untuk dapur dan kamar mandi. Gambar rumah minimalis 2 lantai contoh ragam desain berikut ini adalah sebuah desain rumah yang masih bergaya modern tropissebagai sebuah desain yang sedang tren rumah ini didesain dengan mengusung konsep simplisitas yaitu membuat dominasi fasad dengan unsur kotak dan garis yang dipadu dengan bukaan ruang yang lebar.
Indo design center jasa arsitek yang bisa anda pilih sebagai partner membangun untuk anda.

































































































