Gambar Rumah Minimalis Ukuran 4x15
Gambar desain rumah 415 rumah minimalis saat ini masih makin semakin banyak jadi bidikan terutama di wilayah luas di mana lahan luang yang tersedia semakin kecil.

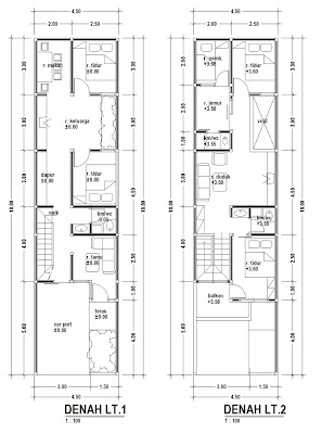
Gambar rumah minimalis ukuran 4x15. 60 gambar tampak depan rumah minimalis 1 lantai sebuah rumah yang nyaman selalu diidentikkan dengan rumah besar dengan lahan luas dan desain klasik yang mewahpadahal untuk mendapatkan sebuah rumah mewah seperti itu pasti membutuhkan banyak biaya dan tidak semua orang memiliki biaya yang cukup untuk membangun rumah yang mewah. Di perkotaan lahan tanah sangatlah mahal. Gambar rumah minimalis 2 lantai tipe 36 di cimuncang karya andiyanto purwonost sumber. Denah rumah 3 kamar ukuran 7x9.
Bagi anda yang sedang mencari ide untuk membangun dengan ide dan cara anda sendiridesain kamar mandi minimalis ukuran 2x1 berikut ini kamu bagikan desain kamar mandi minimalis ukuran 2x1 kami dari tim gambar rumah berharap bisa membatu mewujudkan lebih keren. Gambar desain rumah 415 dengan desain minimalis ini takkan membutuhkan tempat besar sebagai lahan bangunan. 34 konsep baru desain rumah minimalis 2 lantai ukuran 4x15 mempunyai sebuah rumah bukanlah hal yang mudah apalagi anda mengingingkan desain rumah minimalis sebagai komponen dari rumah anda. Atau jika lahan anda lebih luas anda bisa saja membuat denah rumah 3 kamar ukuran 7x9.
Jika anda sudah memiliki lahan namun ingin maksimal sebaiknya melihat coba gambar rumah minimalis modern 2 lantai. Untuk memiliki sebuah desain rumah minimalis 2 lantai ukuran 4x15 yang damai maka anda membutuhkan banyak biaya ditambah lagi harga tanah di daerah. Justru gambar desain rumah 415 model minimalis akan memanfaatkan setiap ruang yang terdapat dan.























































































